티스토리 뷰
공동체 주택이란
입주자들이 공동체 공간을 함께 쓰는 형태의 거주 방식을 말합니다.
공동체 규약을 기초로 입주자 간 소통을 하며 공동 관심사와 생활 문제를 해결해 공동체 생활 기능을 활발하게 하는 주택입니다.
공동체 주택마을
공동체 주택마을은 여러가지 유형의 공동체주택이 모여 마을을 구성하는 방식으로 마을 내에서 일자리와 주거공간이 있고 지역 공동체와 조화를 이루는 새로운 형태의 주거모델입니다.
서울시는 이전에 육아, 노인돌봄 등 사회이슈 해결책을 위해 하나의 건물 형태로 공동체주택을 공급한 바 있습니다만,
마을 단위는 처음이라고 합니다.

테마별 공동체주택 7개 동 2021년 1월 입주 예정
면목동 공동체주택마을 도서당이 12월 31일 준공될 예정입니다.
서울시는 중랑구에서 제안한 책이라는 컨셉으로 총 7개 테마의 공동체주택인 도서당이 조성되었습니다.

현재 입주 모집을 받고 있는 도서당별 입주 자격요건이 다릅니다. 이에 대해 알아보겠습니다.
도서당 입지여건
- 대중교통: 도보로 15분 내 중랑역, 면목역 지하철역 이용 가능
- 환경여건: 중랑천, 중랑 체육공원, 겸재 작은 도서관 가까움
- 환경여건은 점차 개선 예정이라고 합니다.
1. 문화, 예술 도서당

- 위치: 면목동 193-38
- 총 4세대로, 주차대수는 2대입니다. 4층으로 구성됩니다.


- 문화, 예술 도서당 입주 자격 요건
1) 문화, 음악, 무용, 미술, 건축 등 관련 분야 전문가
2) 관련 직종 최소 경력 3년 이상 또는 수상 경력을 증명할 수 있는 사람
2. 요리, 여행 도서당
- 위치: 면목동 103-31
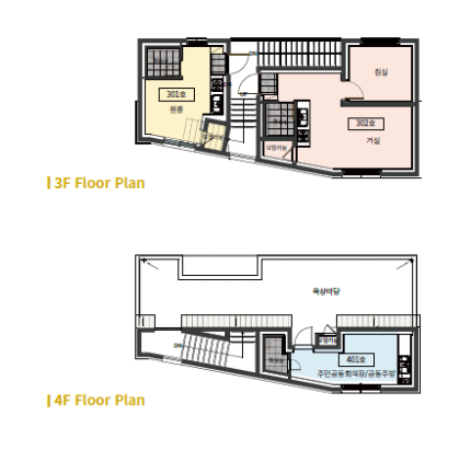
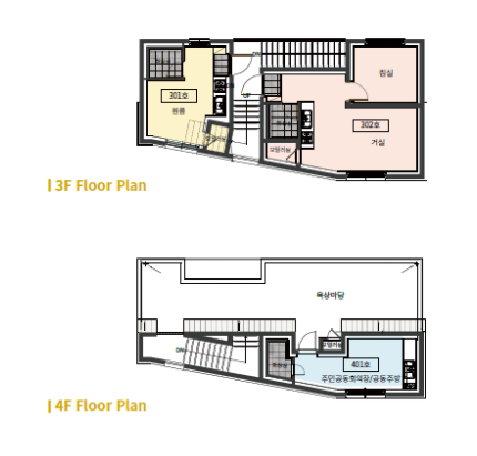
- 총 5세대로, 주차대수는 2대입니다.
5층으로 구성되며, 1층은 근린시설, 공통 세탁실이 있으며,
2층은 201호가 있으며, 301호의 복층형 1층이 있습니다.
3층은 301호의 복층형 2층, 302호가 있습니다.
4층은 401호 복층형의 1층, 402호 복층형의 1층이 있습니다.
5층은 401호 복층형의 2층, 402호 복층형의 2층이 있습니다.

- 요리, 여행 도서당 입주 자격 요건
1) 요리 연구가, 셰프, 바리스타, 소믈리에 등 요리 관련 분야 전문가
2) 파티플래너, 문화관광해설사 등 여행 관련 전문가 및 관련 콘텐츠 개발자
3) 관련 직종 최소 경력 3년 이상 또는 수상 경력 증명 필요
3. 어린이 도서당
위치: 면목동 177-158, 160
총 7세대로, 주차대수는 4대입니다.

6층으로 구성되며, 자세한 부분은 그림을 참고해주세요~

그 밖에도
4. IT/영상(청소년) 도서당(4층)


5. 소설/에세이 도서당(5층)


6. 디자인 도서당(5층+)


7. 인문학 도서당(5층)이 있습니다.


입주가능 호실, 보증금, 월세(임대료는 공간에 따라 21만원부터 시작되네요~) 등 자세한 내용은 아래 링크를 참고해주세요~
면목동 공동체주택마을 도서당[예비인증통과]>단위주택>서울특별시 공동체주택
soco.seoul.go.kr
당신만 안본 뉴스
🔊공인인증서, 공동인증서 헷갈려 죽겠다...!!!